Projekte

BAUMSCHULPARK  ·  Baumschulweg  ·  Basadingen

projektiert

Bild kann nicht angezeigt werden Bild kann nicht angezeigt werden

Überbauung mit einem Doppeleinfamilienhaus und einem Mehrfamilienhaus.

Reihenhäuser TROMOOSERLI  ·  Plaffeien / Schwarzsee

projektiert

Bild kann nicht angezeigt werden

3 Holzhäuser mit Aussicht.

Schwyzerhüsli (Aufstockung)  ·  Im Hummel / Hegenmatt  ·  Zürich

2024

Bild kann nicht angezeigt werden

Aufstockung eines Einfamilienhauses aus dem Jahr 1946 mit vorfabrizierten Holzelementen (Bauzeit: 2 Monate).

HAUS EICH  ·  Eichstrasse 6-8  ·  Zürich

2023

Bild kann nicht angezeigt werden

Stadthaus mit 16 Wohnungen und einem Kindergarten.

Fotos: Alexandre Kapellos, Visualisierung (Bild 1): Kesura AG

Städtischer Kindergarten  ·  Eichstrasse 6-8  ·  Zürich

2023

Bild kann nicht angezeigt werden

Fotos: Alexandre Kapellos (Bild 1-4), Visualisierung: milkbardesigners.com (Bild 5)

Reihenhäuser Blumetshalde  ·  Nussbaumweg 5 a-f  ·  Dättlikon

2020

Bild kann nicht angezeigt werden

Am Südhang des Irchels stehen sechs kompakte Reihenhäuser.

Äusserlich passen sie zum Dorfkern. Das Innere ist moderner gestaltet.

Dieses Projekt versucht alle notwendigen Funktionen eines typischen Schweizer Einfamilienhauses auf wenig Fläche zu realisieren. Das Resultat ist ein äusserst effizientes Gebäude in vielerlei Hinsicht. So verbraucht dieses Haus wenig Grundstücksfläche. Trotz 3 Schlafzimmern, 2 Nasszellen, grosszügigem Wohn- und Essbereich, gut ausgestatteter Küche sowie Keller- und Lagerräumen ist es dank seinem durchdachten Grundrisskonzept von insgesamt sehr kompakter Grösse. Subjektiv nimmt man dieses Haus viel grösser wahr.

Das kompakte Volumen hilft ausserdem, den Wärmeenergieverbrauch niedrig zu halten.

In diesem Haus lässt es sich mit gutem ökologischem Gewissen angenehm wohnen. Alle verwendeten Materialien und Apparate sind von ausgesuchter Qualität und daher äusserst langlebig. Ein durch und durch nachhaltiges Haus.

Fotos: Alexandre Kapellos
Visualisierungen: kesura.ch

Sanierung und Aufstockung Wohnhaus  ·  Am Guggenberg 4/6  ·  Zürich

2018

Bild kann nicht angezeigt werden

Die Wohnungen im bestehenden Teil wurden umfassend saniert, Richtung Aussicht öffnend vergrössert und gesamthaft neu eingepackt. Im Attikageschoss entstand eine neue Wohnung in Holz-Elementbau, direkt erreichbar über einen neuen Lift. Die Wohnungen wurden 2018 fertiggestellt und bezogen.

Fotos: Alexandre Kapellos

Ersatzbau Bauernhaus  ·  Buckstrasse 7 a-c  ·  Pfungen

2018

Bild kann nicht angezeigt werden

Das grosse Wohnhaus besteht aus drei unabhängigen, vertikal getrennten Wohneinheiten, ähnlich wie Reihenhäuser. Im Erdgeschoss befinden sich die Wohnräume, im Obergeschoss die Schlafzimmer. Auch der Dachboden ist für die Wohnnutzung vorbereitet. Alle Wohneinheiten sind verkauft und wurden 2018 bezogen.

Fotos: Alexandre Kapellos
Visualisierungen: space-com.ch

Reihenhäuser Höfli

nicht realisiert

Bild kann nicht angezeigt werden

Wettbewerbe

«Schulanlage Brunnenhof (Ersatzneubau)», Zürich

2023

Visualisierungen: space-com.ch

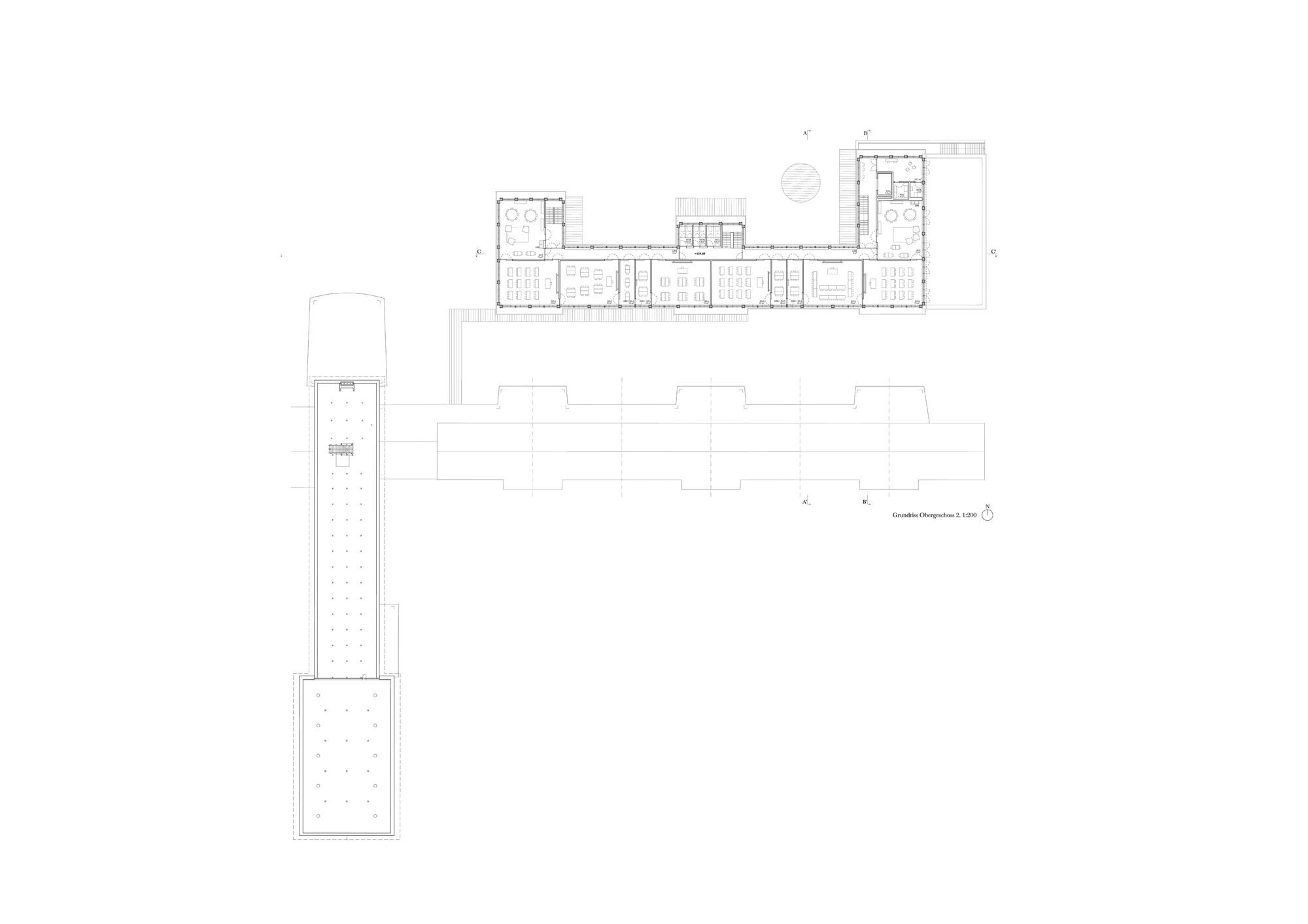
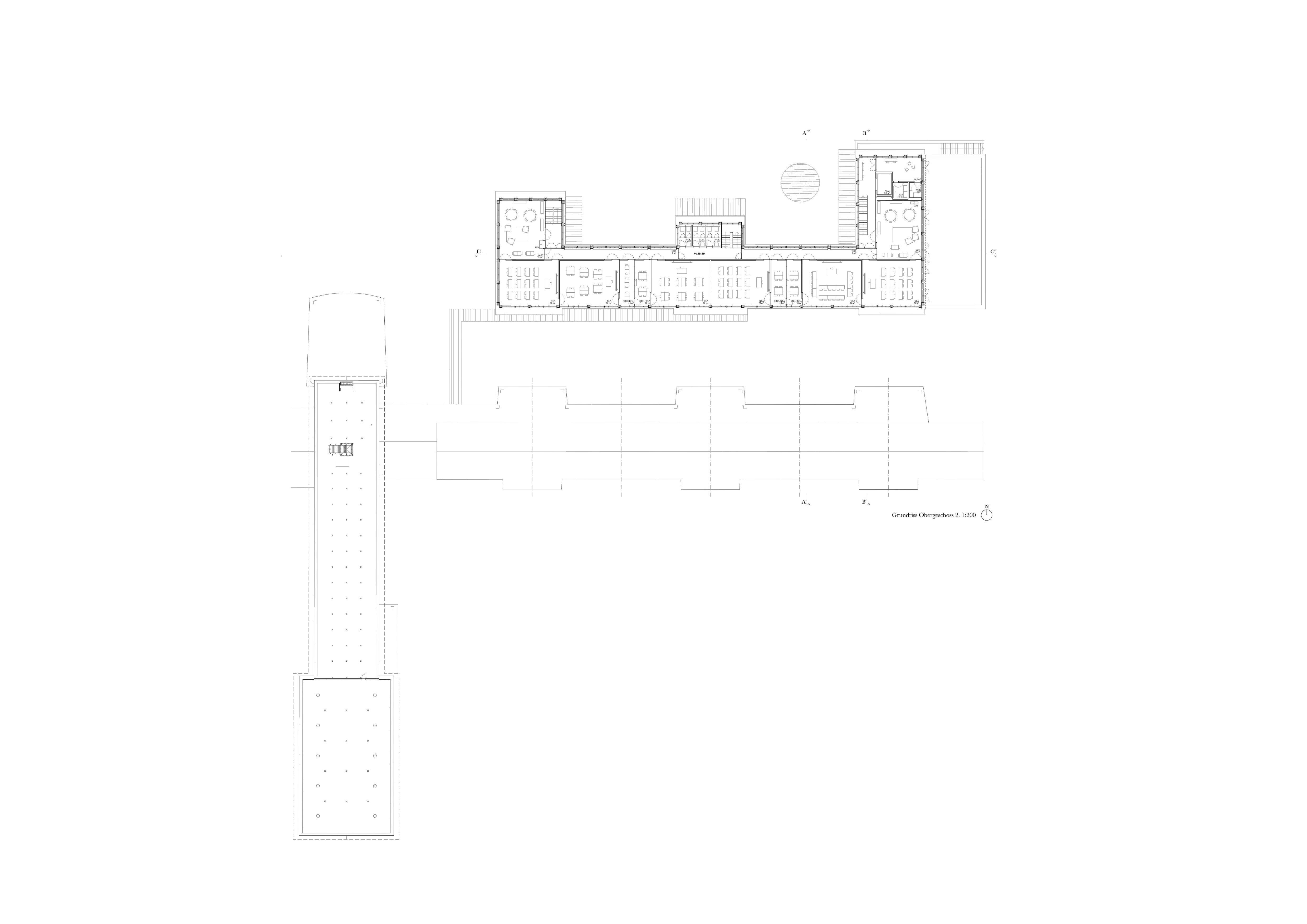
«Schulanlage Utogrund (Ersatzneubau)», Zürich

2023

«Schulanlage Entlisberg (Erweiterung)», Zürich

2022

«Kunstmuseum Thurgau (Erneuerung innerhalb der Kartause Ittingen)», Warth

2022

Adresse

KESURA AG

Köchlistrasse 14, 8004 Zürich, +41 44 450 11 77

kontakt@kesura.ch / www.kesura.ch


Profil

Die Kesura AG ist ein Architekturbüro.


Die Kesura AG plant Bauprojekte von der ersten Skizze bis zur Schlüsselübergabe.


Die Kesura AG berät Bauherren und Baufrauen in jeder Bauphase, unabhängig von einem Planungsmandat.


Die Kesura AG erstellt Expertisen und berät institutionalisierte Bauherrschaften.


Die Kesura AG bearbeitet eigene Projekte als Planerin, Entwicklerin und Immobilienfirma zusammen.

Team

Bild kann nicht angezeigt werden

Emanuel Ullmann, Architekt HTL, Geschäftsleitung

Bild kann nicht angezeigt werden

Katerina Chelioudaki Vardi, Architektin MSc EPFL, Projektleitung

Bild kann nicht angezeigt werden

Renáta Ferencz, Architektin MSc UTCN, Projektplanung

Bild kann nicht angezeigt werden

Thomas Kürsteiner, BA Economics UZH, Administration & Technik

Bild kann nicht angezeigt werden

Kurt Schmid, lic. oec. HSG, Verwaltungsrat



Portraitbilder: Alexandre Kapellos